Thép Hòa xin giới thiệu mẫu biệt thự phố hiện đại 1 trệt 1 lầu 10x24m2 phong cách mộc thích hợp với khí hậu nóng ẩm và dành cho những gia chủ yêu cây cảnh.
Với cái nắng chói chang kèm theo những ngày mưa bão thất thường ở miền nhiệt đới nóng ẩm như Việt Nam, không gian sống đòi hỏi phải được xây dựng dựa trên nhiều yếu tố bao gồm vật liệu kết cấu bền vững khắc phục nhược điểm thời tiết,trang thiết bị tiện nghi và nhu cầu thẩm mỹ của gia chủ. Ngôi nhà không chỉ là nơi chốn nghỉ ngơi sau những giờ làm việc căng thẳng ngôi nhà còn là nơi để chúng ta đón nhận và tận hưởng tình yêu thiên nhiên mộc mạc.

Ngôi nhà tọa lạc trên mảnh đất xéo so với mặt đường nên phần công trình được lùi về sau một khoảng tạo nên mảng đất trống hình thang phía trước biệt thự. Phần diện tích này chỉ được che chắn một phần gần cổng ra vào nằm ở bên hông tạo nên sự thông thoáng, trở thành khuôn viên lý tưởng cho những buổi chiều ngắm phố nhưng khá nắng vào ban trưa vì thiếu vắng bóng râm từ cây xanh cũng như các vật dụng che chắn. Chiếc cổng gỗ đan khít nhỏ nhắn nằm sát tay phải là lối dẫn vào bên trong nhà. Điểm nhấn của mặt tiền căn biệt thự phố là cổng rào và những mảng gỗ chiếm hầu hết phần chính diện tầng trệt nổi bật trên nền trắng tổng thể.

Phong cách Mộc ấn tượng từ cửa ra vào đến sàn nhà đều sử dụng chất liệu gỗ. Mảng tường bên ngoài và trong có sự phân cách rõ rệt bởi cách tạo hình. Tường ngoài gồ ghề, tường trong nhẵn nhụi.

Nội thất biệt thự phố với khoảng trần đúc thạch cao và những mảng tường phủ sơn trắng. Tất cả các cửa từ cửa cổng, cửa ra vào, cửa phòng và cửa sổ đều làm bằng gỗ. Sàn ốp gỗ tùy theo công năng của từng khu vực. Cấu trúc của biệt thự phố phát triển song song chứ không đơn nhất theo chiều dài như những kiểu nhà thông dụng khác. Phòng khách không choáng hết khoảng không gian chính khi đi từ cổng bước vào mà được phân chia và được sắp đặt song song với khu ăn uống.
Phòng khách với bộ khung ghế bằng gỗ lót đệm hình như L tuy với diện tích vừa đủ nhưng lại cảm thấy rộng rãi, thoáng mát bởi khung cảnh hướng vườn.

Biệt thự phố mang phong cách Mộc được thiết kế khá thông minh khi lắp đặt hệ thống cửa kính đặc biệt là các cửa sổ dày đặc kết hợpvới từng mảng xanh thiên nhiên phá bỏ khoảng cách giữa trong và ngoài làm cho không gian bên trong rộng mở, thoáng khí, đón nắng tốt.

Kế tiếp phần không gian phòng khách là khoảng giếng trời trong khoảnh vườn dưới đất hứng nắng giúp cây quang hợp phát triển sinh sôi. Đối diện là nhà bếp nằm cạnh cầu thang dẫn lên khu vực sinh hoạt cá nhân cùa các thành viên. Phần không gian sau cầu thang là nơi đọc sách, thư giãn.

Biệt thự phố có thêm điểm độc đáo là xây dựng khu vườn trên không tiếp giáp với tầng 2. Ở đâu của ngôi nhà ta cũng cảm thấy thiên nhiên bao bọc lấy con người, thanh lọc không khí để mang đến bầu không gian trong lành.


Tầng 2 là chỗ nghỉ ngơi của mọi người trong nhà sau một ngày làm việc vất vả với nhà tắm và các phòng ngủ. Chất Mộc vẫn được giữ và thống nhất trong chỉnh thể mộc mạc nhưng mang đậm chất hiện đại bởi các vật dụng , trang thiết bị.


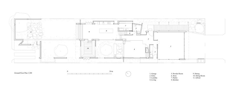
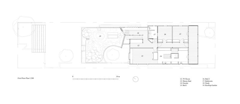
Bản vẽ chi tiết Biệt thự phố:





