
Sự kết hợp của các phong cách Industrial-Scandinavian và Á đông
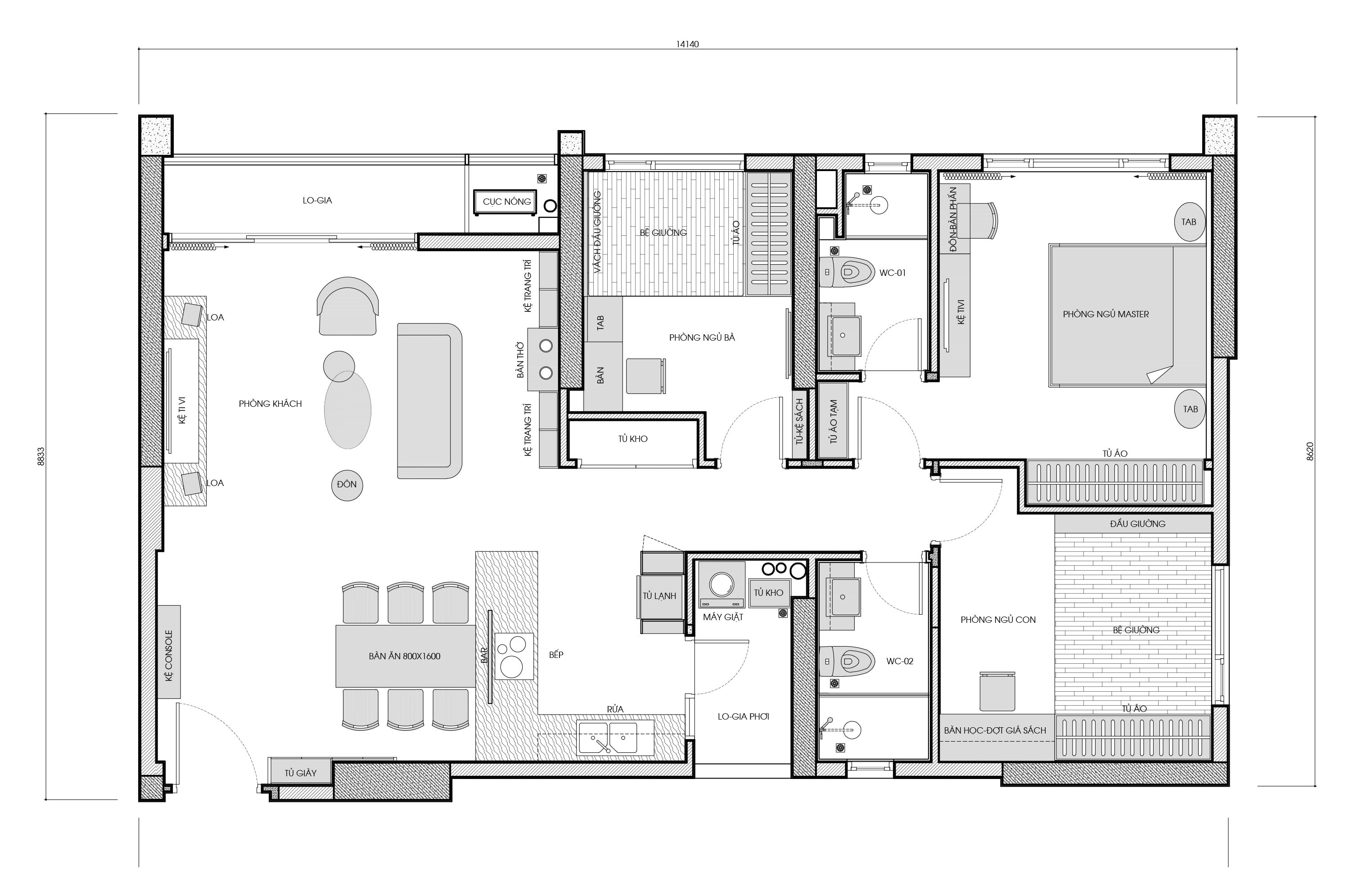
Một căn hộ 100m2 xinh xắn có phòng khách – bếp ăn khá rộng rãi với 3 phòng ngủ, 2 vệ sinh, logia và có tầm nhìn, đi kèm sự thông thoáng 100% cho toàn bộ các không gian quả là niềm mơ ước cho một gia đình trẻ khi tìm chọn giữa bạt ngàn các thiết kế căn hộ hiện tại.

Sự kết hợp của Bột đá-gốm Nhật với Gốm Việt Nam
Với mong muốn một thiết kế nội thất có cảm giác nhẹ nhàng gần gũi mà vẫn đa dạng về hình thức, chất liệu và màu sắc hoàn thiện – một tổng thể mang lại sức sống mới và là nơi tái tạo năng lượng cho các thành viên trong gia đình sau những áp lực của lao động và học tập hằng ngày, đồng thời cũng là nơi có bộ mặt thân thiện với khách đến thăm – kiến trúc sư đã chọn chủ nghĩa triết chung làm tinh thần cho thiết kế của mình.
Khu bếp vốn dĩ đóng kín đã được phá mở và thu gọn nhằm tạo sự thông thoáng cả về tầm nhìn lẫn thông gió (sau khi đã được nghiên cứu về hướng gió của căn hộ). Các điều chỉnh nhỏ về vị trí cửa thông phòng đã tạo được những hệ tủ – vách âm tường giúp tận dụng tối đa các chức năng đựng – chứa rất cần có trong sinh hoạt nhà ở.

Bức tranh được vẽ bằng sơn tổng hợp lên vách che và treo hút mùi bếp ở phía sau


Sự kết hợp của các phong cách Industrial-Scandinavian và Á đông


Nắng cũng là 1 yếu tố thuộc về nội thất

Tone màu thời thượng với các chất liệu đa dạng phối hợp cùng nhau, tạo cảm giác sang trọng nhưng vẫn rất gần gũi
Việc đưa các chất liệu khác nhau vào thiết kế như sắt, đá, gỗ, bột đá Nhật, mây tre đan, gương – kính cùng tông màu được phối hợp hài hòa giữa nóng và lạnh, đen và trắng, khiến cho tổng thể công trình có sự đa dạng và sinh động nhất định. Đồ đạc nội thất cũng được chọn lựa và thiết kế ăn ý với nhau, dù theo những phong cách khác nhau nhưng không bị lệch pha nhờ vào sự cân nhắc giữa các tỉ lệ hài hòa, khiến cho mọi thứ trở nên vừa sinh động lại vừa ấm cúng, đúng với tính chất sinh hoạt của gia đình chứ không phải một showroom trưng bày nội thất.
Hội họa cũng khiến cho căn hộ của gia chủ có thêm cá tính, vừa là điểm nhấn vừa là 1 hình thức “xử lí tình huống” rất sáng tạo, xóa đi những sự khô cứng của một chức năng thông thường.

Tường bếp được phá bỏ và thu gọn để tạo thành bếp mở

Mặt bằng cải tạo và bố trí nội thất
Thiết kế: KTS Bùi Hồng Đăng – Công ty cổ phần Inchigroup
Bài & ảnh: KTS VŨ HỒNG CƯƠNG
